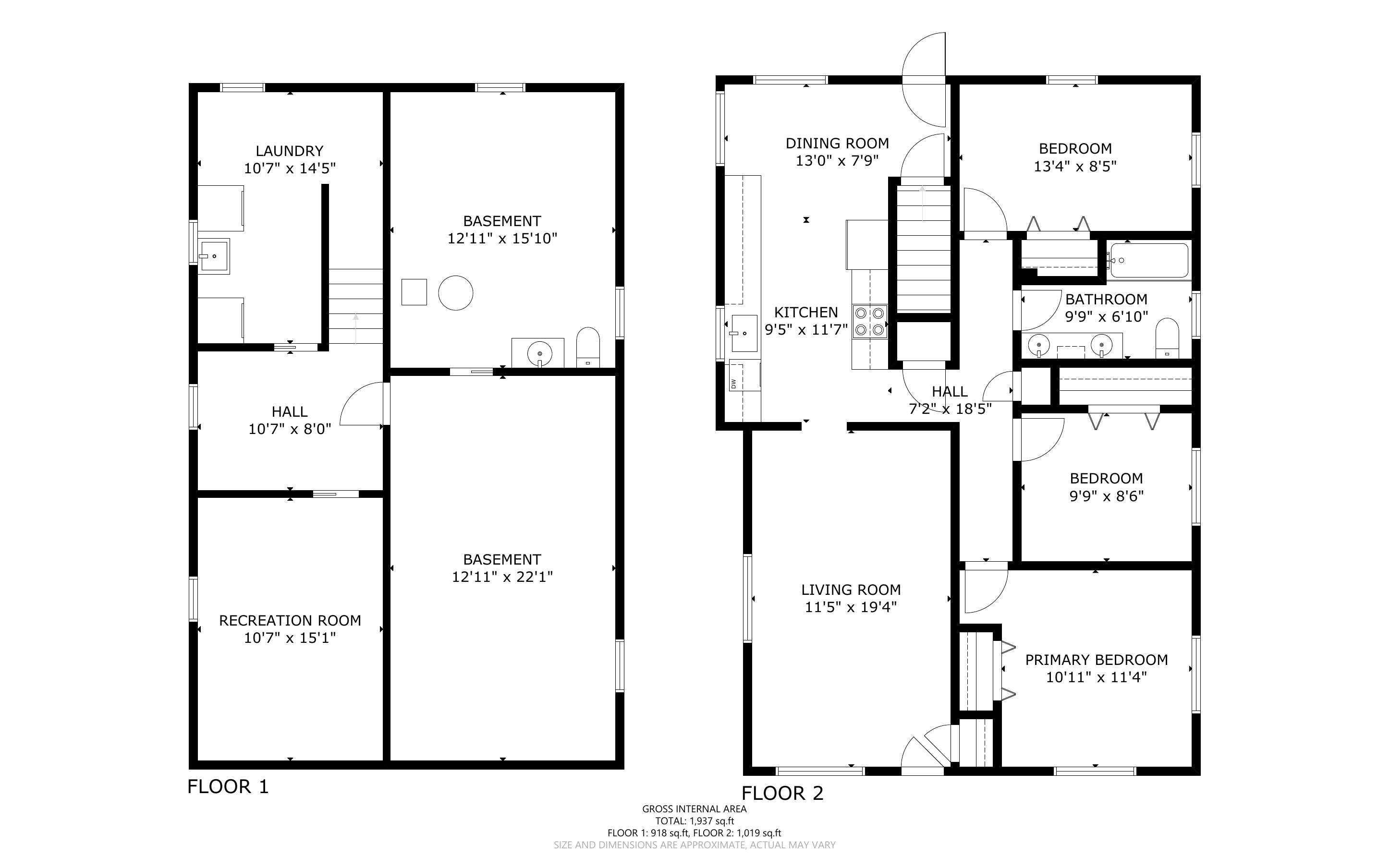
Welcome to this charming rambler nestled in the vibrant community of Crystal, MN. As you approach the front entrance, anticipation builds for the warm and inviting interior that awaits you. Step inside to discover the timeless allure of gleaming hardwood floors that seamlessly complement the abundant natural light streaming through the windows. This meticulously maintained home boasts a convenient...
Photos









































